Teritorijų planavimo dokumentai
BIRUTĖS GATVĖS KĖDAINIŲ MIESTO SEN., DAUKŠIŲ K. IR PASMILGIO K., SPECIALUSIS PLANAS
Tvirtinimo dokumentas – 2025-03-28 Tarybos sprendimas Nr. TS-68
KĖDAINIŲ RAJONO VANDENS TIEKIMO IR NUOTEKŲ TVARKYMO INFRASTRUKTŪROS PLĖTROS SPECIALUSIS PLANAS
Detalizuojamų gyvenviečių brėžinys
Tvirtinimo dokumentas – 2024-12-20 Tarybos sprendimas Nr. TS-410
Vandens tiekimo ir nuotekų tvarkymo tinklų planavimas seniūnijose:
KĖDAINIŲ RAJONO SAVIVALDYBĖS BENDRASIS PLANAS
-Koregavimo aiškinamasis raštas
-Funkcinių prioritetų brėžinys
-Susisiekimo ir infrastruktūros brėžinys
-Nekilnojamojo kultūros paveldo apsaugos ir naudojimo brėžinys
-Gamtinio kraštovaizdžio, biologinės įvairovės ir rekreacijos brėžinys
KĖDAINIŲ MIESTO BENDRASIS PLANAS
- Koregavimo aiškinamasis raštas
- Pagrindinis brėžinys
- Susisiekimo sistemos brėžinys
- Inžinerinės infrastruktūros brėžinys
- Želdynų sistemos brėžinys
- Gamtinio karkaso brėžinys
SPRENDIMAS ,,Dėl Kėdainių miesto bendrojo plano keitimo tvirtinimo" (2021 m. sausio 29 d. Nr. TS-20)
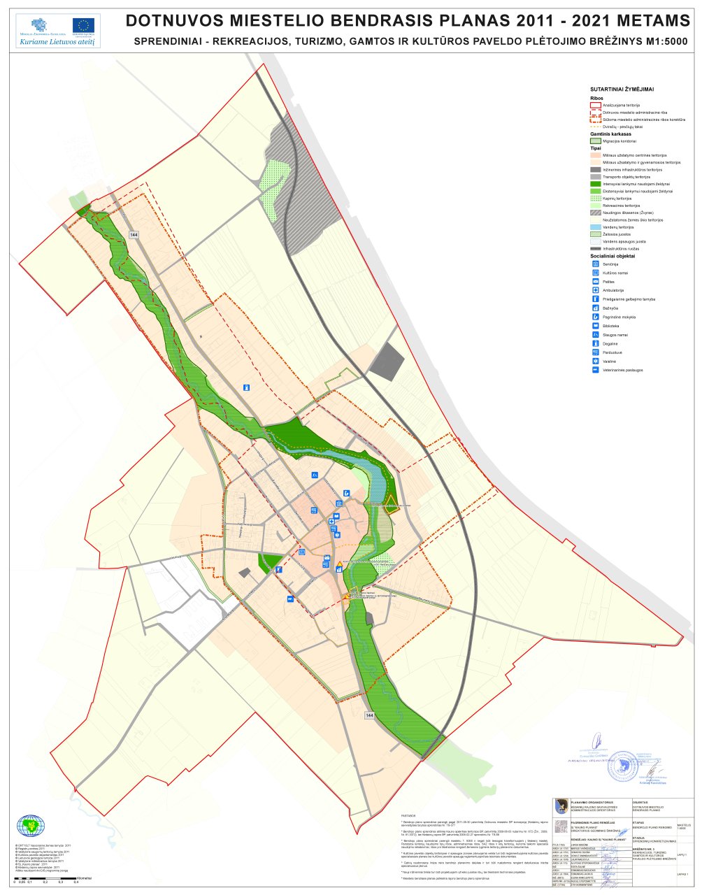
DOTNUVOS MIESTELIO BENDRASIS PLANAS
- Žemės naudojimas ir apsaugos reglamentai
- Inžinerinė infrastruktūra ir susisiekimo komunikacijos
- Rekreacijos, turizmo, gamtos ir kultūros paveldo plėtojimas
SPRENDIMAS ,,Dėl Dotnuvos miestelio bendrojo plano tvirtinimo" (2012 m. gegužės 25 d. Nr. TS-191)
JOSVAINIŲ MIESTELIO BENDRASIS PLANAS
- Žemės naudojimas ir apsaugos reglamentai
- Inžinerinė infrastruktūra ir susisiekimo komunikacijos
- Rekreacijos, turizmo, gamtos ir kultūros paveldo plėtojimas
SPRENDIMAS ,,Dėl Josvainių miestelio bendrojo plano tvirtinimo" (2012 m. gegužės 25 d. Nr. TS-190)
KRAKIŲ MIESTELIO BENDRASIS PLANAS
SPRENDIMAS ,,Dėl Krakių miestelio bendrojo plano tvirtinimo" (2013 m. liepos 5 d. Nr. TS-226)
ŠĖTOS MIESTELIO BENDRASIS PLANAS
- Aiškinamasis raštas ir brėžiniai
SPRENDIMAS ,,Dėl Šėtos miestelio bendrojo plano tvirtinimo" (2013 m. liepos 5 d. Nr. TS-227)
VILAINIŲ KAIMO TERITORIJOS DETALUSIS PLANAS
LABŪNAVOS KAIMO DETALUSIS PLANAS
PAOBELIO KAIMO DETALUSIS PLANAS
PELĖDNAGIŲ KAIMO DETALUSIS PLANAS
NOCIŪNŲ KAIMO DETALUSIS PLANAS
KĖDAINIŲ MIESTO DAUGIABUČIŲ GYVENAMŲJŲ NAMŲ KVARTALŲ DETALIEJI PLANAI
- Žemaitės g. kvartalo detaliojo plano brėžinys
- Smilgos g. kvartalo detaliojo plano brėžinys
- Ramybės skv. kvartalo detaliojo plano brėžinys
- Šėtos g. kvartalo detaliojo plano brėžinys
- Liepų al. kvartalo detaliojo plano brėžinys
- J. Basanavičiaus - Kęstučio g. kvartalo detaliojo plano brėžinys
- Josvainių g. kvartalo detaliojo plano brėžinys
- Liaudies, Respublikos, Chemikų, A. Kanapinsko, Rasos g. kvartalo detaliojo plano brėžinys
- Gegučių, A. Kanapinsko, g. Rasos, Mindaugo, Pavasario g. kvartalo detaliojo plano brėžinys
KĖDAINIŲ RAJONO TERITORIJOS BENDRASIS PLANAS 2007 - 2017 METAMS
- Žemės naudojimas ir apsaugos reglamentai